Telephone no.: 2180-9028/6988-9301 (Hong Kong) / 170-9880-9301 (China)
PROPERTY(Bldg & Flat)

Basic Information

ID
jpp5427
Type
Studio Flat
Property name
Presence Sakaisuji Honmachi Destiny
Status
Rented
Price
23,000,000 yen
Price(USD)
147,200US$
Rental income
71,920 yen/month
Gross return
3.75%
Net return
3.19%
Management fee
5,520yen/month
Maintenance fee
1,300yen/month
Other fee
-
PM fee
3,956 yen/month
Address
OSAKA FU OSAKA SHI CHUO KU KITAKYUHOJIMACHI1-3-9
Transportation
Osaka Metro Chuo Line Sakaisuji Honmachi Walk 4Minutes
Mode of transaction

Property Information

Structure
Reinforced Concrete
Bldg Year
1/2022
Storey
Storey 15
Floor
15F
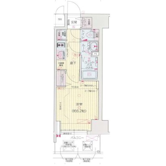
Actual area
21.66㎡
 
 
Balcony area
-
Balcony direction
North 
Layout
1R

Land Information

Area
0㎡
Land right
Freehold
City planning district
Urbanization area
Use district
Comment
7 minutes walk from Matsuyamachi Station on the Osaka Metro Nagahori Tsurumi-ryokuchi Line  

 

 

 

 

 

Enquiry
Property No
5427
Name
First  Last
Email address
Phone number
District
Occupation
Purchase reason
Enquiry content
*To Next Line
Agreement
Are you real estate agent?