Telephone no.: 2180-9028/6988-9301 (Hong Kong) / 170-9880-9301 (China)
PROPERTY(Bldg & Flat)

Basic Information

ID
jpp5439
Type
Studio Flat
Property name
Advance Shinsaibashi La Shre
Status
Rented
Price
17,100,000 yen
Price(USD)
109,440US$
Rental income
67,200 yen/month
Gross return
4.72%
Net return
3.6%
Management fee
6,200yen/month
Maintenance fee
6,000yen/month
Other fee
-
PM fee
3,696 yen/month
Address
OSAKA FU OSAKA SHI CHUO KU MINAMIKYUHOJIMACHI3-2-6
Transportation
Midosuji Line Honmachi Walk 5Minutes
Mode of transaction

Property Information

Structure
Reinforced Concrete
Bldg Year
1/2014
Storey
Storey 15
Floor
5F
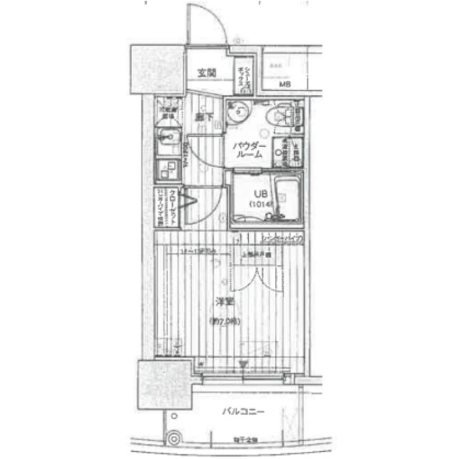
Actual area
23.01㎡
 
 
Balcony area
-
Balcony direction
 
Layout
1K

Land Information

Area
0㎡
Land right
Freehold
City planning district
Urbanization area
Use district
Comment
Nagahori Tsurumi-ryokuchi Line, Shinsaibashi Station, 8 minutes walk 

 

 

 

 

 

Enquiry
Property No
5439
Name
First  Last
Email address
Phone number
District
Occupation
Purchase reason
Enquiry content
*To Next Line
Agreement
Are you real estate agent?