Telephone no.: 2180-9028/6988-9301 (Hong Kong) / 170-9880-9301 (China)
PROPERTY(Bldg & Flat)

Basic Information

ID
jpp5495
Type
Studio Flat
Property name
Nikko Palace Asagaya PART II
Status
Rented
Price
11,800,000 yen
Price(USD)
75,520US$
Rental income
56,000 yen/month
Gross return
5.69%
Net return
4.14%
Management fee
9,050yen/month
Maintenance fee
3,200yen/month
Other fee
-
PM fee
3,080 yen/month
Address
TOKYO TO SUGINAMI KU ASAGAYAMINAMI3-24-8
Transportation
Sobu Chuo Line Asagaya Walk 6Minutes
Mode of transaction

Property Information

Structure
Reinforced Concrete
Bldg Year
11/1988
Storey
Storey 4
Floor
2F
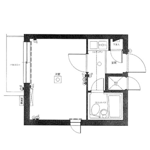
Actual area
16.01㎡
 
 
Balcony area
-
Balcony direction
 
Layout
1K

Land Information

Area
0㎡
Land right
Freehold
City planning district
Urbanization area
Use district
Comment
Marunouchi Line Minami-Asagaya Station 7 minutes walk 

 

 

 

 

 

Enquiry
Property No
5495
Name
First  Last
Email address
Phone number
District
Occupation
Purchase reason
Enquiry content
*To Next Line
Agreement
Are you real estate agent?