Telephone no.: 2180-9028/6988-9301 (Hong Kong) / 170-9880-9301 (China)
PROPERTY(Bldg & Flat)

Basic Information

ID
jpp5693
Type
Studio Flat
Property name
La grace NIPPORI
Status
Living
Price
62,270,000 yen
Price(USD)
392,301US$
Rental income
0 yen/month
Gross return
0%
Net return
-0.79%
Management fee
27,040yen/month
Maintenance fee
11,280yen/month
Other fee
-
PM fee
2,750 yen/month
Address
TOKYO TO ARAKAWA KU HIGASHINIPPORI4-36-27
Transportation
JR Yamanote Line Uguisudani Walk 6Minutes
Mode of transaction

Property Information

Structure
Reinforced Concrete
Bldg Year
3/2018
Storey
Storey 7
Floor
6F
Actual area
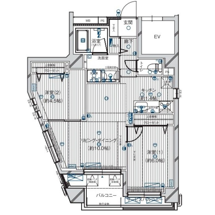
54.28㎡
 
 
Balcony area
-
Balcony direction
 
Layout
2LDK

Land Information

Area
0㎡
Land right
Freehold
City planning district
Urbanization area
Use district
quasi-industrial districts
Comment
※Currently operating as a monthly apartment 

 

 

 

 

 

Enquiry
Property No
5693
Name
First  Last
Email address
Phone number
District
Occupation
Purchase reason
Enquiry content
*To Next Line
Agreement
Are you real estate agent?